Listing Detail

Description:

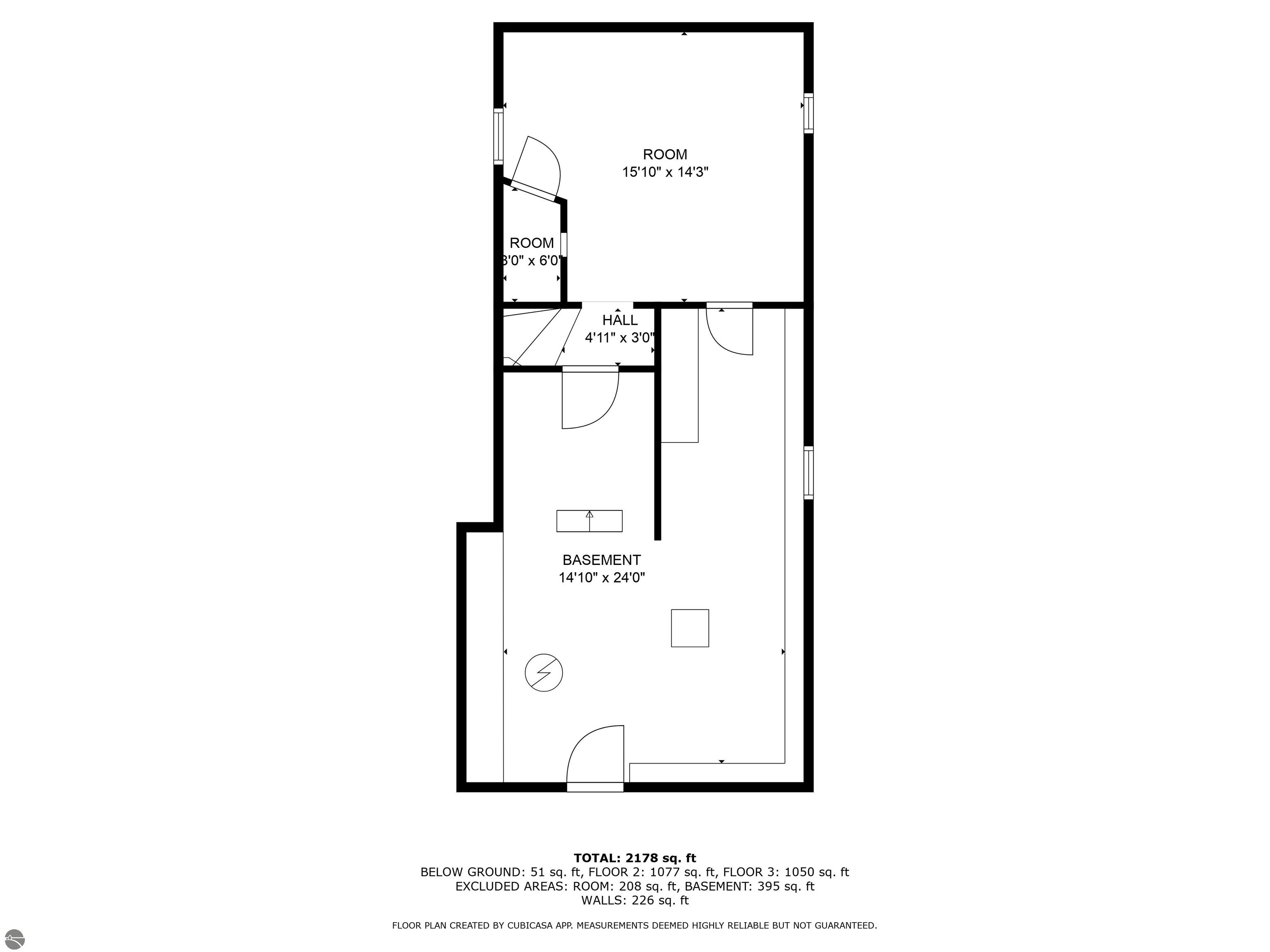
Central neighborhood home with abundance of old Traverse City charm! Historically renovated in 2004, this classic home boasts original hardwood floors and Victorian warmth with tiled kitchen and primary en suite. The home greets you with a covered front porch and beautiful gardens, adorable 1930's children's playhouse, and detached garage with large heated office space above. The floor plan features a formal living room, gathering area, den with attached bath, dining room and bright open kitchen. Upstairs 2 bedrooms share an updated full bath; laundry room, private primary bedroom with large walk in closet and beautiful marble/tiled bath. The basement is dry and plenty of room for storage or to create a children's play space or nice work out room. Walk to school, restaurants, beaches, downtown or just stroll the quiet neighborhood streets! Measurements are deemed reliable but not guaranteed. Purchaser to verify.

Room Information:

Room Size Level Carpet
Living 15.2 x 12.4 Main Floor Wood
Dining 11.2 x 12.1 Main Floor Wood
Kitchen 12.7 x 9.8 Main Floor Tile
Family 12.1 x 9.3 Main Floor Wood
Master Bed 15.1 x 12.9 Upper Floor Carpet
Bedroom 11.2 x 12.1 Upper Floor Carpet
Bedroom 12.1 x 11.3 Upper Floor Carpet
Bedroom

Listing Details:

Price:
$849,000
MLS#:
1937831
Address:
421 W 9th Street
Traverse City
Bedrooms:
3
Bath:
3
Size:
2,178 sq.ft.
Year Built:
1900
School District:
Traverse City Area Public Schools

Property Information:

Subdivision:
Perry Hannah's 1st addition
Lot Dimensions:
37x163x38x165
Township:
Traverse City
County:
Grand Traverse
Homestead:
 
Special Assess:
Condo:
No
Annual Assn Fee:
Lot Number:
Acres:
0.14
Section:
10
Main Floor Laundry:
Upper Floor
Taxes:
 
Year Remodeled:
2004
Water Frontage:
Access:

Additional Information:

Style:
2 Story, Victorian
Lot Description:
Metes and Bounds
Architecture:
Financing:
Conventional, Cash
Garage:
Detached, Finished Rooms
Type:
Residential
Basement:
Michigan Basement, Block, Daylight Windows, Stone
Zoning:
Residential
Construction:
Frame
Heating/Cooling:
Natural Gas
Roof:
Asphalt
Heating/Cooling Type:
Forced Air
Baths:
Water/Waste:
Municipal / Municipal
Appliances:
Refrigerator, Oven/Range, Dishwasher, Washer, Dryer
Road:
Blacktop
Interior:
Built-In Bookcase, Foyer Entrance, Walk-In Closet(s), Solid Surface Counters, Formal Dining Room, Den/Study
Out Buildings:
Other
Exterior:
Porch
Possession:
Negotiable
Listing is courtesy of Century 21 Northland 231-929-7900